






Lihat Semua
Rumah
Jual GREEN VILLE
Rp 2,5 M
RUMAH BARU 2 LANTAI DI GREEN VILLE JAKARTA BARAT DEKAT TANJUNG DUREN, ROW 2 MOBIL, LOKASI STRATEGIS, AMAN
Detail Properti
Transaksi
Jual
Kamar Tidur
2
Kamar Mandi
2
Luas Tanah
88 m2
Luas Bangunan
132 m2
Tipe Properti
Rumah
Alamat
GREEN VILLE
Lokasi
DKI Jakarta, Jakarta Barat, Green Ville
Listrik
2200 Watt
Sertifikat
SHM
Hadap
Selatan
Group
Secondary
Furnish
Non-furnished
Ada Garasi
Ya
Terdaftar Pada
31 Januari 2026
ID Listing
310226-BRIM00002
Keterangan
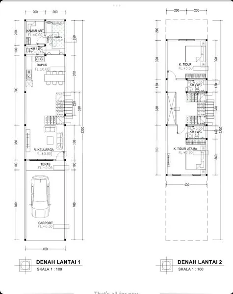
3 unit rumah baru ukuran 4x22
2+1 kamar tidur
2+1 kamar mandi
carport 1 mobil
row jalan 2 mobil
ruang keluarga
shm
air pam
listrik 2200w
Harga 2,5 M nego
Keunggulan Lokasi & Fasilitas Sekitar:
- Dekat Puri Indah & Kebon Jeruk
- Akses mudah ke Tol Kebon Jeruk & Tol Jakarta–Tangerang
- 10 menit ke Mall Puri Indah, Central Park & Taman Anggrek
- Dekat RS Grha Kedoya, RS Royal Taruma
- Sekitar sekolah favorit (IPEKA, BPK Penabur, sekolah internasional)
- Area kuliner lengkap Tanjung Duren – Greenville
- Lingkungan tenang, akses jalan nyaman
- Rumah dengan layout fungsional, pencahayaan baik, dan lokasi matang seperti ini jarang tersedia di Duri Kepa dengan harga kompetitif.
2+1 kamar tidur
2+1 kamar mandi
carport 1 mobil
row jalan 2 mobil
ruang keluarga
shm
air pam
listrik 2200w
Harga 2,5 M nego
Keunggulan Lokasi & Fasilitas Sekitar:
- Dekat Puri Indah & Kebon Jeruk
- Akses mudah ke Tol Kebon Jeruk & Tol Jakarta–Tangerang
- 10 menit ke Mall Puri Indah, Central Park & Taman Anggrek
- Dekat RS Grha Kedoya, RS Royal Taruma
- Sekitar sekolah favorit (IPEKA, BPK Penabur, sekolah internasional)
- Area kuliner lengkap Tanjung Duren – Greenville
- Lingkungan tenang, akses jalan nyaman
- Rumah dengan layout fungsional, pencahayaan baik, dan lokasi matang seperti ini jarang tersedia di Duri Kepa dengan harga kompetitif.
Simulasi Cicilan KPR
Harga Properti (Rp)
Rp 2,5 M
Uang Muka (Rp)
Jangka Waktu
Suku Bunga
Jumlah Angsuran
Rp 15.815.873 per bulan
Dengan klik tombol kontak, Pengguna setuju dengan Syarat Pengguna dan Kebijakan Privasi



































































